Mit der neuen 1610-Serie will Arendal die Tugenden der Top-Baureihen in bezahlbare Regionen bringen.
>> Mehr erfahren>> Alle anzeigen
Mit integriertem MC-Phono-Vorverstärker und XLR-Anschlüsse für beste Klangqualität
>> Mehr erfahren>> Alle anzeigenStandlautsprecher mit Waveguide-Hochtöner
Drei Nummern größer
Die Geschichte geht weiter: Rund um die famose Kombination FRS5X und Waveguide haben wir mit Cheap Trick 327, 333 und 339 schon die Chassis-Größen von 10 bis 18 Zentimetern als Tieftonpartner abgearbeitet – Zeit für einen „richtigen Bass“.
Das Feedback auf den kleinen Cheap Trick mit dem aufgesetzten Horn war überwältigend und durchweg positiv, doch der Wunsch nach „mehr“ war ebenfalls unüberhörbar. Mehr Bass, mehr Pegel, mehr Standfestigkeit. Bei der Bestandsaufnahme im Lager fiel der Blick fast zwangsläufig auf einen Treiber, der seit Jahrzehnten solide Arbeit leistet und deutlich mehr Luft bewegt als der kleine 10er. Konzeptionell bleiben wir der Linie treu: Ein günstiger, bewährter Tieftöner, kombiniert mit einer pfiffigen Hochtonlösung, die nun ebenfalls eine Evolutionsstufe weiter ist.
Technik
Der Visaton W 200 S in der 8-Ohm-Version ist ein echtes Urgestein. Wie seine kleinen Brüder aus CT327 und CT339 setzt er auf einen soliden Stahlblechkorb und die bewährte, beschichtete Papiermembran. Mit 20 Zentimetern Nenndurchmesser spielen wir hier aber in einer ganz anderen Liga.















Im Hochtonbereich kommt erneut der FRS5X zum Einsatz, allerdings hat sich beim Drumherum Entscheidendes getan. Der Hersteller hat das Waveguide überarbeitet. Die wichtigste Neuerung: Eine integrierte, geschlossene Rückkammer für den Breitbänder. Das schnöde Isolieren mit Panzerband gehört damit der Vergangenheit an! Durch das definierte Koppelvolumen reicht der Frequenzgang nun noch etwas tiefer hinab, was die Anbindung an den großen 20er Tieftöner erleichtert. Zudem wurde die Geometrie am Hornmund leicht optimiert, was nicht nur das Abstrahlverhalten weiter glättet, sondern auch noch das letzte Quäntchen Pegel aus dem kleinen Treiber herauskitzelt.
Gehäuse
Hubraum ist durch nichts zu ersetzen, außer durch mehr Hubraum. Aus den 5 Litern des Vorgängers sind stattliche 50 Liter geworden. Das resultiert in einer klassischen Standbox, die dem W 200 S den nötigen Tiefgang ermöglicht. Auch hier gilt: Einfache Kiste, Material 19er MDF. Das Bassreflexrohr wandert aufgrund der möglichen Ankopplung an die Rückwand auf die Rückseite oder bleibt bei sehr wandnaher Position vorne – je nach Aufstellungswunsch. Das neue Waveguide wird wie gehabt auf den Deckel montiert, durch die integrierte Kabelführung und die eingelassenen Gewinde ist die Montage nun aber deutlich sauberer und professioneller zu lösen.
Frequenzweiche
Der Tieftöner verhält sich aufgrund der Schallwandbreite gutmütig und kann entsprechend beschaltet werden. Zu beachten ist nur, dass vor der eigentlichen Filterung der doch deutliche Impedanzanstieg aufgrund der Schwingspuleninduktivität linearisiert wird. Ein RC-Glied erledigt diesen Job.
Messwerte
Wir erhalten eine Box, die im Bassbereich nun richtig zupackt. Die untere Grenzfrequenz liegt merklich unter 40 Hertz. Der Wirkungsgrad liegt mit knapp 86 Dezibel an 2,83 Volt nicht deutlich über dem von CT339 – wir haben es hier aber mit einer lupenreinen 8-Ohm-Box zu tun. Der Hochtöner zeigt durch die neue Horngeometrie einen noch etwas engeren Verlauf unter Winkeln, weswegen wir ihm das „Gezappel“ um 10 Kilohertz herum bei den Winkelmessungen verzeihen. Das Constant-Directivity- Verhalten ist ab dem Mitteltonbereich vorbildlich, der Energieverlauf im Raum sehr ausgewogen. Der W 200 S geht in einem moderat großen Gehäuse zwar recht tief – für absolute Pegelorgien ist er aber nicht der beste Kandidat: Bei 95 Dezibel steigt zumindest der „gute“ K2 unterhalb von 1000 Hertz kontinuierlich an, während er bei allen Pegeln einen Grund-K3 von knapp 0,5% zeigt – beides noch nicht hörbar, aber eben auch nicht perfekt. Trotz der sorgfältigen Bedämpfung haben wir mit unserem vorderseitig montierten Reflexrohr leichte Artefakte im Mitteltonbereich, die sich im Wasserfalldiagramm als Nachschwinger zeigen – insgesamt ist das Ganze aber unproblematisch. Wie gesagt: Wer das sauber haben möchte, legt das Reflexrohr nach hinten.
Hörtest
Musste der kleine Bruder noch wandnah aufgestellt werden, um Volumen im Bass zu erzielen, fordert CT340 Platz. Frei im Raum aufgestellt, zeigt der W 200 S, was „Bass“ wirklich bedeutet: Trocken, tief und mit physischem Druck, der in der Magengrube ankommt. Den Hochtonbereich stellt man sich durch Einwinkeln ein, wie man möchte und dann kann es auch schon losgehen mit dem großen Spaß. Dabei ist es erstaunlich, wie gut der kleine FRS5X im neuen Waveguide und mit der tiefen Trennung mithält: Die Dynamik ist explosiv, Schlagzeugsoli machen irre Spaß, Snare-Drums knallen mit einer Wucht in den Raum, dass man unweigerlich grinsen muss. Durch die tiefere Trennung wirkt das Klangbild trotz der Größenunterschiede der Chassis wie aus einem Guss, der Übergang zwischen dem großen Konus und dem Horn ist unhörbar. Die räumliche Abbildung ist präzise, aber großformatig – Instrumente und Stimmen werden eher „larger than life“ abgebildet, als mit der ultimativen Präzision. Und obwohl er das dank seines wirklich tief reichenden Basses auch kann: CT340 ist kein Lautsprecher für leise Hintergrundberieselung, das ist ein Lautsprecher, der Musik erleben lässt.
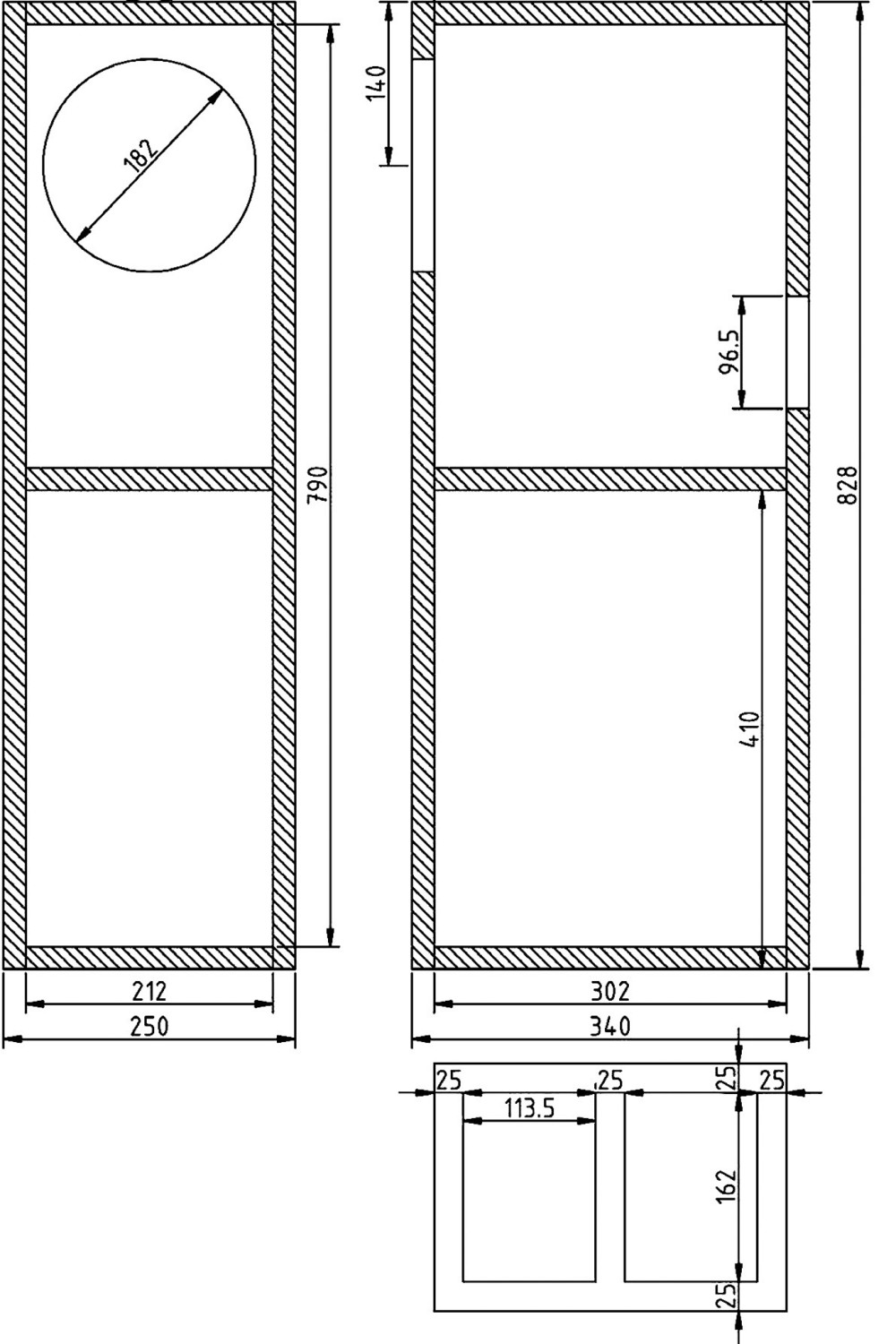
Aufbauanleitung
Die Box wird auf der Front oder der Rückwand aufgebaut. Zuerst werden eine Seitenwand, Boden, Deckel und die Ringversteifung eingeklebt, danach die zweite Seitenwand. Zum Schluss wird die Box mit der verbleibenden Platte verschlossen. Ob Sie die Ausschnitte für den Tieftöner (wir haben ihn nicht eingefräst) und das Reflexrohr jetzt oder vorher vornehmen, bleibt Ihnen überlassen. Die Dämmung der Box erfolgt mit drei Matten Sonofil, die gleichmäßig im Raum unterhalb des Teilers verteilt werden. Noppenschaumstoff oder Bondum 800 belegt die Rückwand und Seiten oberhalb der Versteifung, in den Luftraum hinter dem Treiber kommt noch locker Sonofil - bitte nicht den direkten Weg zum Reflexrohr versperren! Die Kabel für den Hochtöner und die Befestigung des Waveguides erfolgen von innen durch den Deckel des Bassgehäuses.
Zubehör pro Box
Dammstoff: Sonofil, 4 Matten
1 Terminal
1 Reflexrohr BR-70HP
Schrauben
Kabel 2m 2 x 2,5
Dichtstreifen
Lieferant: Visaton / Lautsprechershop
Holzliste Material:
19-mm MDF
2 x 82,8 x 25,0 cm Front, Rückwand
3 x 30,2 x 21,2 cm Deckel, Boden, Versteifung
2 x 82,8 x 30,2 cm Seitenwände
Weichenbestückung
L1: 2,2 mH Luftspule, 1,0 mm
C1: 27 µF MKT
C2: 33 µF MKT
C3: 4,7 µF MKP
R1: 10 Ohm MOX 20W
R2: 4,7 Ohm MOX 10W
R3: 8,2 Ohm MOX 10W
Fazit
Lust auf mehr? Entdecke unser Klang&Ton Abo!
Kategorie: Lautsprecherbausätze
Produkt: Klang+Ton-Projekt Cheap Trick 340
Stückpreis: um 240 Euro+ Gehäuse
Das logische Upgrade: Ernsthafter Bass, verbesserter Hochton und jede Menge Spaß für wenig Geld. Ein richtig erwachsener Cheap Trick.
Klang+Ton-Projekt Cheap Trick 340
Klang+Ton-Projekt Cheap Trick 340
Metz neuester Fernseher hört auf den schlichten Namen Primus, lateinisch für der Erste. Diese selbstbewusste Namensgebung weist bereits darauf hin, dass es sich um das Topmodell im Metz-TV-Programm handelt
>> Mehr erfahren>> Alle anzeigen| Technische Daten | |
| Chassishersteller : | Visaton |
| Vertrieb: | Visaton, Haan |
| Internet | www.printyourbeat.de |
| Konstruktion: | Thomas Schmidt |
| Funktionsprinzip: | Bassreflex |
| Bestückung: | 1 x Visaton W 200 S, 8 Ohm 1 x Visaton FRS5x 1 x Printyourbeat Waveguide V3 (closed back) |
| Nennimpedanz (in Ohm): | 8 Ohm |
| Kennschalldruckpegel 2,83 V/1m: | 2,83 V/1 m: 86 dB |
| B x H x T (in cm) | 25 x 82,8 x 34 cm + Horn |
| Kosten pro Stück: | ca. 240 Euro + Gehäuse |




